hero-image-0

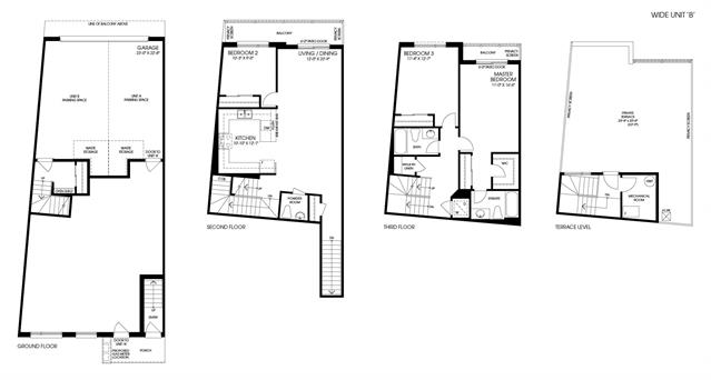
Unit B Wide Plan

Humberwood Heights
Sold
Sold
3
2
1
From 1,831
unit-banner-imageunit-banner-imageunit-banner-image
Unit B Wide Plan details
Unit B Wide Plan is now sold.
Check out available nearby plans below.