hero-image-0

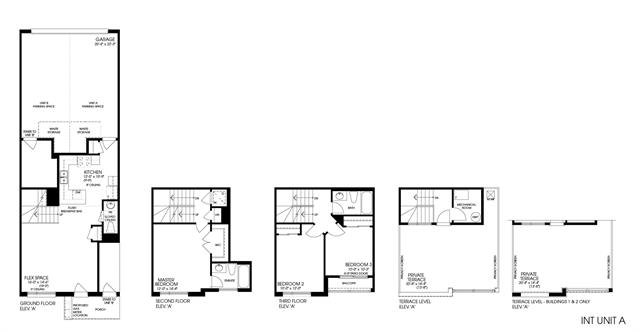
Unit A Plan

Humberwood Heights
Sold
Sold
3
2
1
From 1,453
unit-banner-imageunit-banner-imageunit-banner-image
Unit A Plan details
Unit A Plan is now sold.
Check out available nearby plans below.