hero-image-0

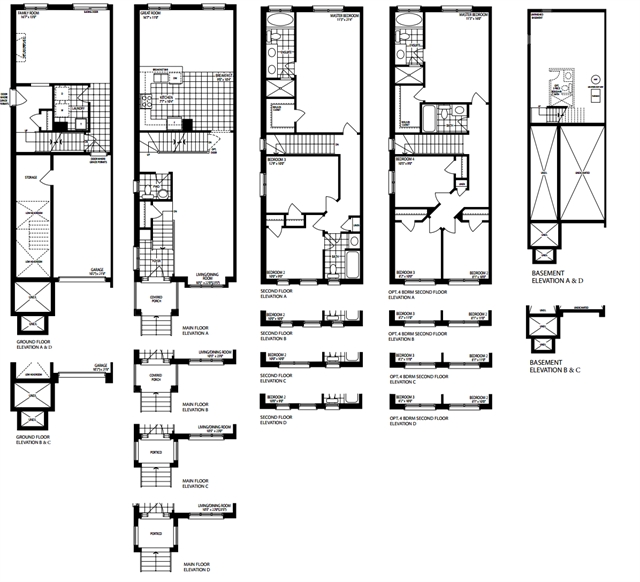
The Cedarview Plan

HumberView Trails
Sold
Sold
4
From 2,195
unit-banner-imageunit-banner-imageunit-banner-image
The Cedarview Plan details
The Cedarview Plan is now sold.
Check out available nearby plans below.