hero-image-0
hero-image-1

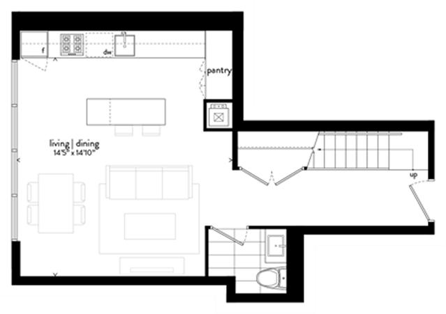
712 Plan

Howard Park 2
Sold
Sold
2
2
1
1
From 1,330
unit-banner-imageunit-banner-imageunit-banner-image
712 Plan details
712 Plan is now sold.
Check out available nearby plans below.