hero-image-0

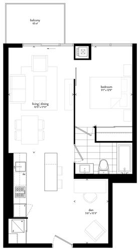
615 Plan

Howard Park 2
Sold
Sold
1
1
1
From 620
unit-banner-imageunit-banner-imageunit-banner-image
615 Plan details
615 Plan is now sold.
Check out available nearby plans below.