hero-image-0

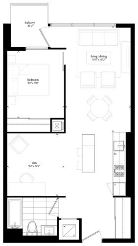
427 Plan

Howard Park 2
Sold
Sold
1
1
1
From 697
unit-banner-imageunit-banner-imageunit-banner-image
427 Plan details
427 Plan is now sold.
Check out available nearby plans below.