FEATURED
S2
Queen Church
Garden District, Toronto
S1
0C
Maison Wellesley
Church and Wellesley, Toronto
T-10
Line 5 - The North Tower
North Toronto, Toronto
T-03
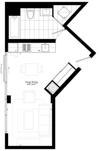
S-D
Junction Sq. Condos
The Junction, Toronto
S-E
0B