hero-image-0

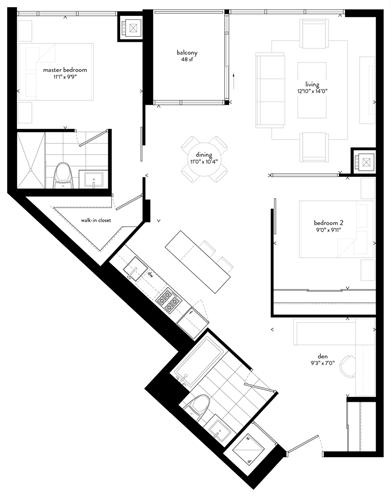
326 Plan

Howard Park 2
Sold
Sold
2
2
1
From 1,012
unit-banner-imageunit-banner-imageunit-banner-image
326 Plan details
326 Plan is now sold.
Check out available nearby plans below.