FEATURED
2D
Queen Church
Garden District, Toronto
2B
2K
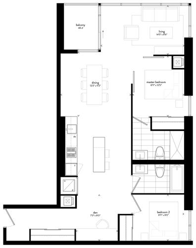
E6A
Motto
Bloorcourt Village, Toronto
2G
E8
E6
2C