hero-image-0

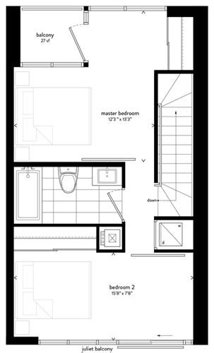
225 Plan

Howard Park 2
Sold
Sold
2
2
1
From 880
unit-banner-imageunit-banner-imageunit-banner-image
225 Plan details
225 Plan is now sold.
Check out available nearby plans below.