hero-image-0
hero-image-1

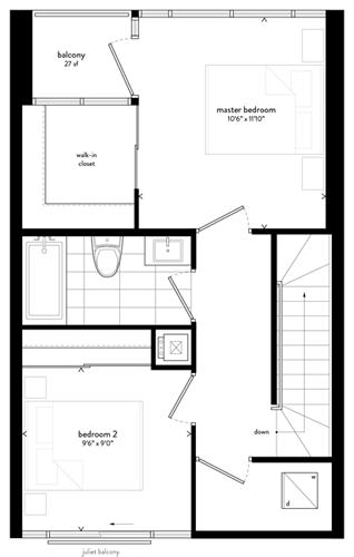
222 Plan

Howard Park 2
Sold
Sold
2
1
1
1
From 1,013
unit-banner-imageunit-banner-imageunit-banner-image
222 Plan details
222 Plan is now sold.
Check out available nearby plans below.