hero-image-0

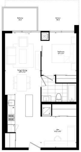
213 Plan

Howard Park 2
Sold
Sold
1
1
1
From 665
unit-banner-imageunit-banner-imageunit-banner-image
213 Plan details
213 Plan is now sold.
Check out available nearby plans below.