hero-image-0

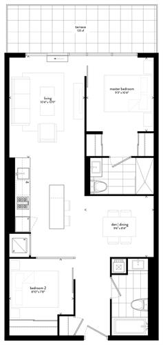
151 Plan

Howard Park 2
Sold
Sold
2
2
1
From 807
unit-banner-imageunit-banner-imageunit-banner-image
151 Plan details
151 Plan is now sold.
Check out available nearby plans below.