hero-image-0
Home On Power (Power + Adelaid...
Sold
Sold
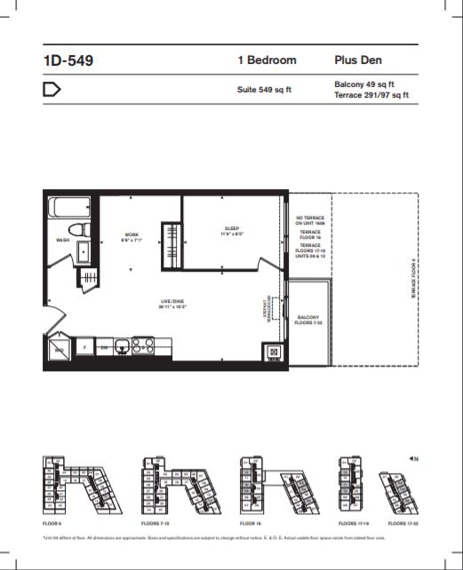
1
1
1
549
50-1910 details
unit-banner-image
unit-banner-image
unit-banner-image
50-1910 is now sold.
Check out available nearby condos below.