hero-image-0
Home On Power (Power + Adelaid...
Sold
Sold
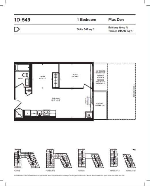
1
1
1
549
48-2203 details
unit-banner-image
unit-banner-image
unit-banner-image
48-2203 is now sold.
Check out available nearby condos below.