hero-image-0
Home On Power (Power + Adelaid...
Sold
Sold
1
1
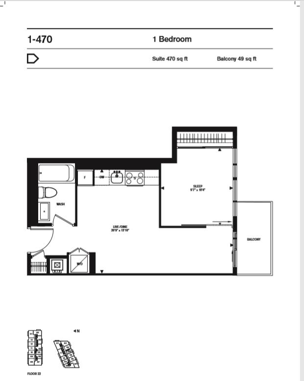
From 470
unit-banner-imageunit-banner-imageunit-banner-image
1-470 Plan details
1-470 Plan is now sold.
Check out available nearby plans below.