Rio 390
Encore at Bravo
Vaughan Corporate Centre, Vaughan
Rio 430
S3
6080 Yonge
Newtonbrook West, Toronto
S-B
Junction Sq. Condos
The Junction, Toronto
S1
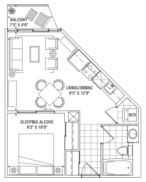
Rio 425
T-03
Line 5 – The South Tower
North Toronto, Toronto
S-A