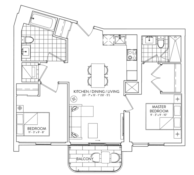
Unit 402

By

Almadev

   |   

Galleria III

Galleria III
Sold
Sold
2
1
631
$1,268
Unit 402 details
unit-banner-image
unit-banner-image
unit-banner-image
Unit 402 is now sold.
Check out available nearby condos below.

Interested? Receive updates

Stay informed with Livabl updates on new community details and available inventory.