hero-image-0

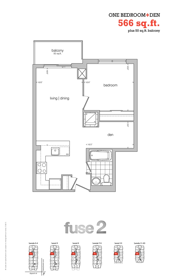
566 Plan

Fuse Condos
Sold
Sold
1
1
1
From 566
unit-banner-imageunit-banner-imageunit-banner-image
566 Plan details
566 Plan is now sold.
Check out available nearby plans below.