hero-image-0

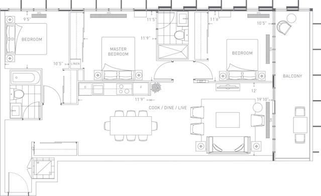
3E Plan

By

Tridel

   |   

FORM

FORM
Sold
Sold
3
2
From 1,134
unit-banner-imageunit-banner-imageunit-banner-image
3E Plan details
3E Plan is now sold.
Check out available nearby plans below.