hero-image-0

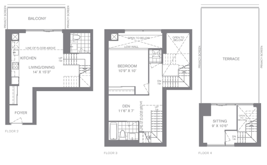
The De La Renta Plan

By

Empire Homes

   |   

FLY Condos

FLY Condos
Sold
Sold
1
1
From 985
unit-banner-imageunit-banner-imageunit-banner-image
The De La Renta Plan details
The De La Renta Plan is now sold.
Check out available nearby plans below.