Capri Signature Q
Privilla
Clanton Park, Toronto
T-01
Line 5 - The North Tower
North Toronto, Toronto
Capri Signature Plus F
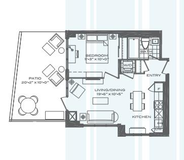
T-13
No. 13
8188 Yonge
Uplands, Vaughan
T-12
Capri Signature Plus D
Capri Signature K