hero-image-0
Five Condos at 5 St. Joseph
Sold
Sold
1
From 855
unit-banner-imageunit-banner-imageunit-banner-image
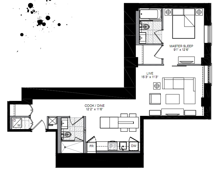
3-IX Plan details
3-IX Plan is now sold.
Check out available nearby plans below.