hero-image-0

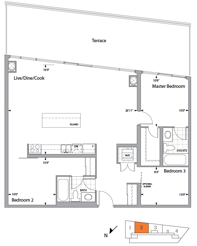
The Queensway Plan

Evolution Condos
Sold
Sold
3
2
From 1,140
unit-banner-imageunit-banner-imageunit-banner-image
The Queensway Plan details
The Queensway Plan is now sold.
Check out available nearby plans below.