hero-image-0

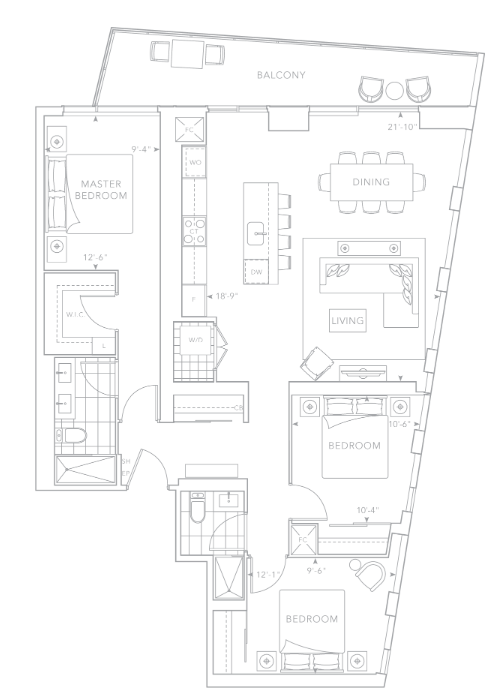
3C Plan

Empire Maverick
Sold
Sold
3
2
From 1,260
unit-banner-imageunit-banner-imageunit-banner-image
3C Plan details
3C Plan is now sold.
Check out available nearby plans below.

Available homes

Interested? Receive updates

Stay informed with Livabl updates on new community details and available inventory.