hero-image-0
Eleven Superior Condominiums
Sold
Sold
1
1
595
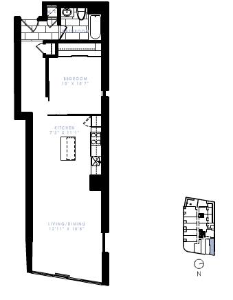
Unit 203 details
unit-banner-image
unit-banner-image
unit-banner-image
Unit 203 is now sold.
Check out available nearby condos below.