hero-image-0

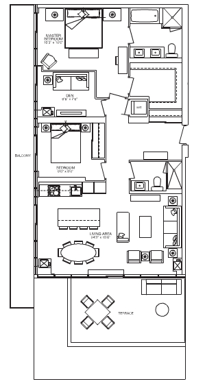
1200 Plan

E Condos: Yonge and Eglinton
Sold
Sold
2
2
1
From 1,200
unit-banner-imageunit-banner-imageunit-banner-image
1200 Plan details
1200 Plan is now sold.
Check out available nearby plans below.