hero-image-0
Dundas Square Gardens
Sold
Sold
1
1
From 500
unit-banner-imageunit-banner-imageunit-banner-image
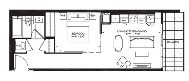
T12a Plan details
T12a Plan is now sold.
Check out available nearby plans below.