hero-image-0
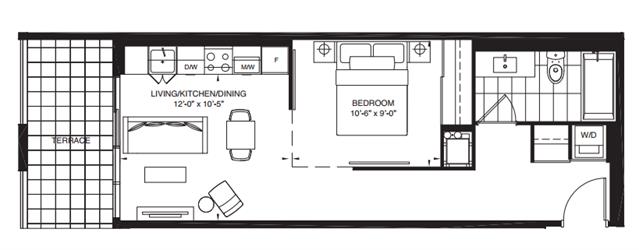
Dundas Square Gardens
Sold
Sold
1
1
From 515
unit-banner-imageunit-banner-imageunit-banner-image
T11b Plan details
T11b Plan is now sold.
Check out available nearby plans below.