hero-image-0
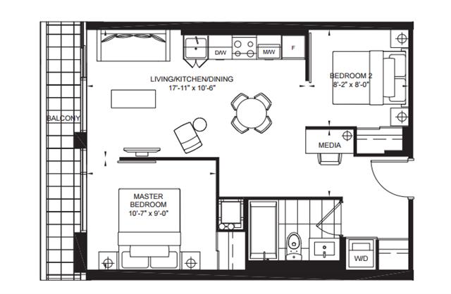
Dundas Square Gardens
Sold
Sold
2
1
From 576
unit-banner-imageunit-banner-imageunit-banner-image
T08 Plan details
T08 Plan is now sold.
Check out available nearby plans below.