hero-image-0
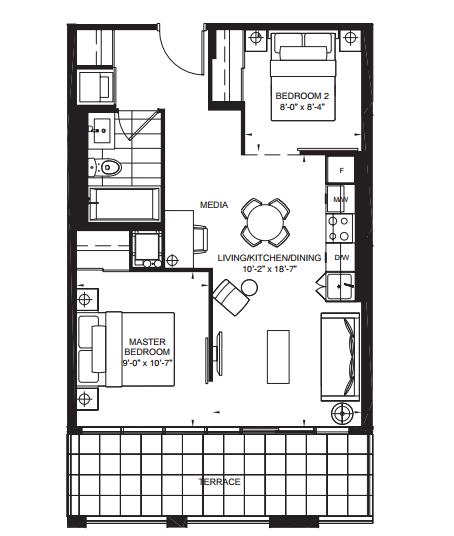
Dundas Square Gardens
Sold
Sold
2
1
From 575
unit-banner-imageunit-banner-imageunit-banner-image
G17 Plan details
G17 Plan is now sold.
Check out available nearby plans below.