hero-image-0
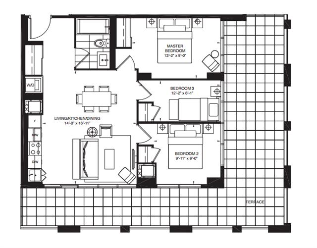
Dundas Square Gardens
Sold
Sold
3
1
From 773
unit-banner-imageunit-banner-imageunit-banner-image
G15 Plan details
G15 Plan is now sold.
Check out available nearby plans below.