hero-image-0

TH-B

By

TAS

   |   

DUKE Condos

DUKE Condos
Sold
Sold
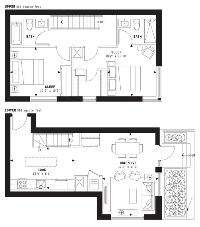
2
2
1,117
TH-B details
unit-banner-image
unit-banner-image
unit-banner-image
TH-B is now sold.
Check out available nearby townhomes below.