hero-image-0

TH-A

By

TAS

   |   

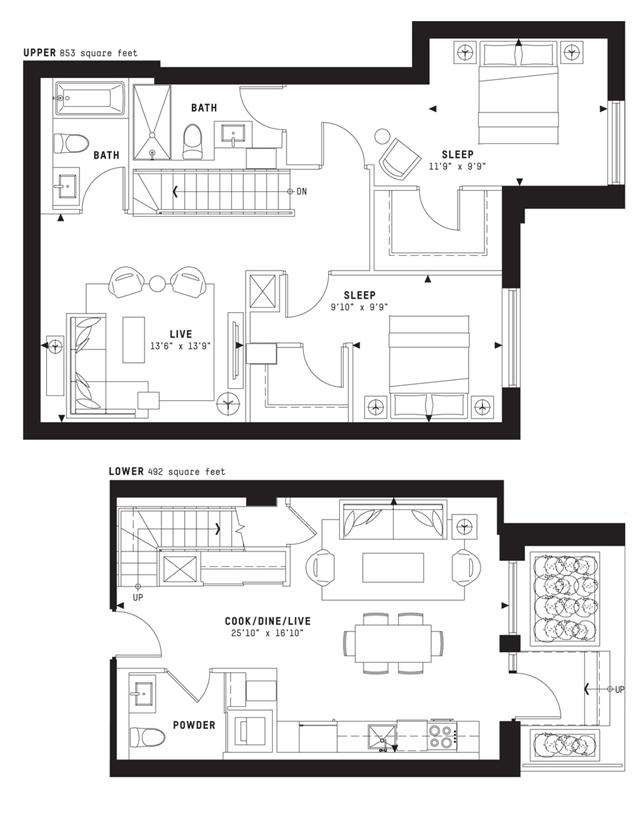
DUKE Condos

DUKE Condos
Sold
Sold
2
2
1
1,345
TH-A details
unit-banner-image
unit-banner-image
unit-banner-image
TH-A is now sold.
Check out available nearby townhomes below.