hero-image-0

Unit 711

By

TAS

   |   

DUKE Condos

DUKE Condos
Sold
Sold
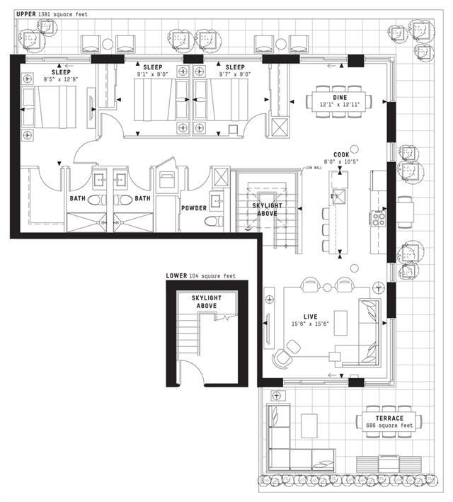
3
2
1
1,494
Unit 711 details
unit-banner-image
unit-banner-image
unit-banner-image
Unit 711 is now sold.
Check out available nearby condos below.