hero-image-0

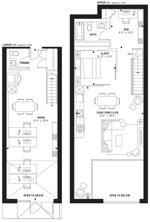
LW-A Plan

By

TAS

   |   

DUKE Condos

DUKE Condos
Sold
Sold
1
1
1
1
From 1,458
unit-banner-imageunit-banner-imageunit-banner-image
LW-A Plan details
LW-A Plan is now sold.
Check out available nearby plans below.