




Toronto’s hottest new developments of 2013
It was a banner year for Burlington and Toronto's west end, but 2014 might be all about the east end.

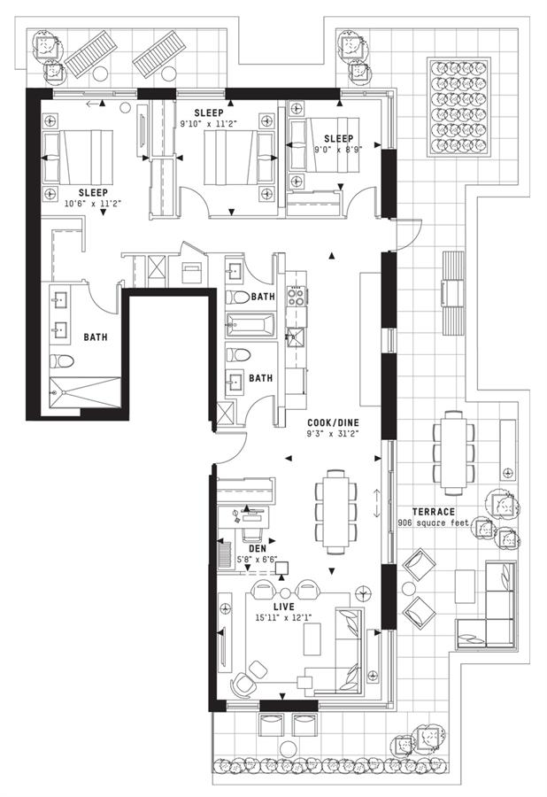
New terrace suites with unobstructed views of the Junction just released at DUKE Condos
The mid-rise project's plans for outdoor space are mindful of the neighbourhood's dynamic.

Live at DUKE Condos and experience all the perks of life in The Junction
From street festivals to top-rated restaurants, see our list of why the west end neighbourhood is an awesome place to live.