hero-image-0

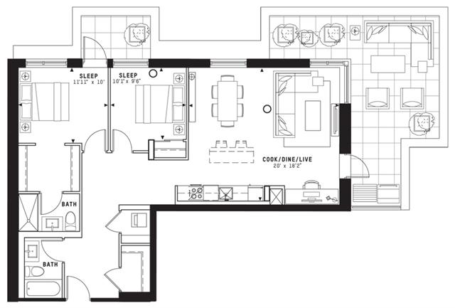
2D-P Plan

By

TAS

   |   

DUKE Condos

DUKE Condos
Sold
Sold
2
2
1
From 1,095
unit-banner-imageunit-banner-imageunit-banner-image
2D-P Plan details
2D-P Plan is now sold.
Check out available nearby plans below.