hero-image-0

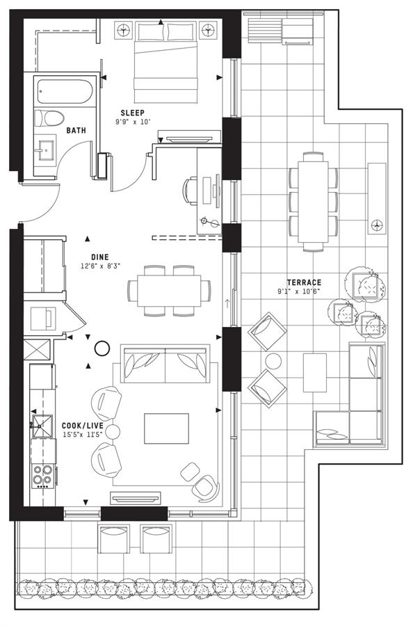
1D-K Plan

By

TAS

   |   

DUKE Condos

DUKE Condos
Sold
Sold
1
1
1
From 720
unit-banner-imageunit-banner-imageunit-banner-image
1D-K Plan details
1D-K Plan is now sold.
Check out available nearby plans below.