FEATURED
S1
Queen Church
Garden District, Toronto
S2
0C
Maison Wellesley
Church and Wellesley, Toronto
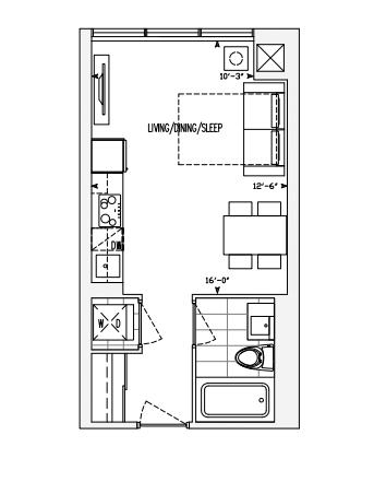
0B
T-10
Line 5 - The North Tower
North Toronto, Toronto
Q0BA
BLVD.Q
The Queensway, Toronto
T-03
Line 5 – The South Tower