hero-image-0

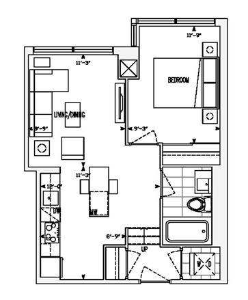
1M Plan

DNA 3
Sold
Sold
1
From 492
unit-banner-imageunit-banner-imageunit-banner-image
1M Plan details
1M Plan is now sold.
Check out available nearby plans below.