FEATURED
B18
Motto
Bloorcourt Village, Toronto
1F+D
Queen Church
Garden District, Toronto
B21
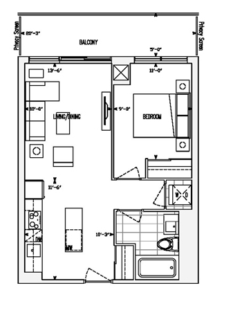
B17
B15
1G+D
1E+D
B20A