hero-image-0

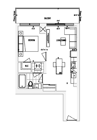
1B Plan

DNA 3
Sold
Sold
1
From 495
unit-banner-imageunit-banner-imageunit-banner-image
1B Plan details
1B Plan is now sold.
Check out available nearby plans below.