FEATURED
B15
Motto
Bloorcourt Village, Toronto
1E+D
Queen Church
Garden District, Toronto
B18
B20A
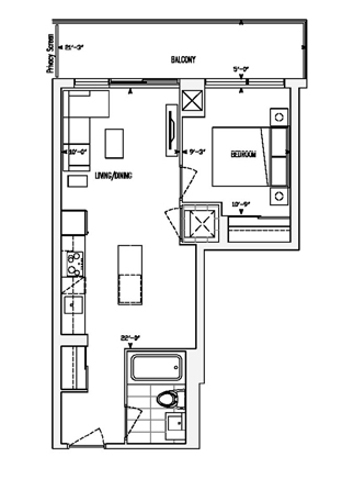
1G+D
1F+D
B21
B17