hero-image-0

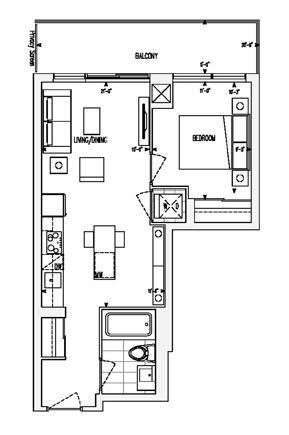
1A Plan

DNA 3
Sold
Sold
1
From 487
unit-banner-imageunit-banner-imageunit-banner-image
1A Plan details
1A Plan is now sold.
Check out available nearby plans below.