Collier
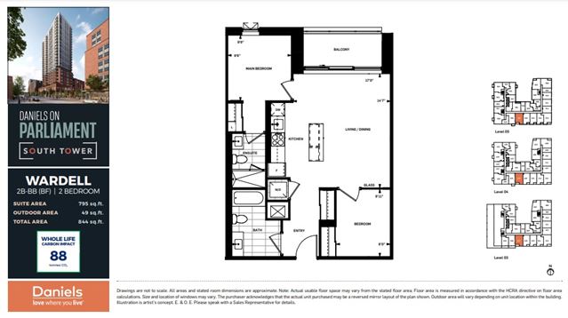
Daniels on Parliament - South
Regent Park, Toronto
Rosedale
Park
Charles
Aylmer
OAK
HAYDEN
EDGEDALE
Stay informed with Livabl updates on new community details and available inventory.