hero-image-0
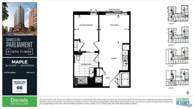
Daniels on Parliament - South
Sold
Sold
1
1
From 596
$1,245
unit-banner-imageunit-banner-imageunit-banner-image
Maple Plan details
Maple Plan is now sold.
Check out available nearby plans below.

Interested? Receive updates

Stay informed with Livabl updates on new community details and available inventory.