hero-image-0
Daniels on Parliament - South
Sold
Sold
2
2
From 793
$1,214
unit-banner-imageunit-banner-imageunit-banner-image
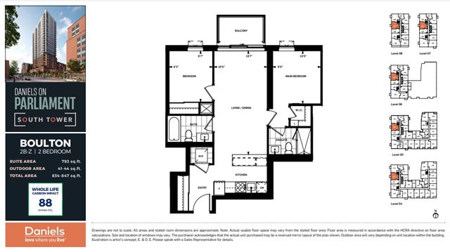
Boulton Plan details
Boulton Plan is now sold.
Check out available nearby plans below.

Interested? Receive updates

Stay informed with Livabl updates on new community details and available inventory.