hero-image-0

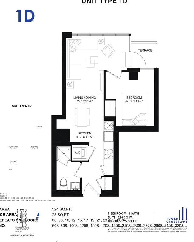
1D Plan

Crosstown III
Sold
Sold
1
1
From 524
unit-banner-imageunit-banner-imageunit-banner-image
1D Plan details
1D Plan is now sold.
Check out available nearby plans below.