hero-image-0

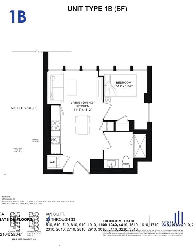
1B (BF) Plan

Crosstown III
Sold
Sold
1
1
From 465
unit-banner-imageunit-banner-imageunit-banner-image
1B (BF) Plan details
1B (BF) Plan is now sold.
Check out available nearby plans below.